marine crane models
EBI Cranes manufactures three basic models, each having its special purpose in the pedestal crane market. All three crane types can be equipped with special features to greater enhance specific job tasks or crane performance.
A lattice boom marine crane allows you to have a lighter boom to load ratio. With a lighter boom weight, you’re able to lift heavier loads. Lift and handle heavier loads with EBI’s lattice boom offshore pedestal-mounted cranes.
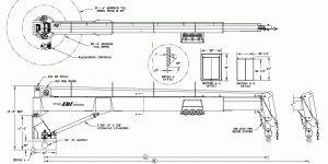
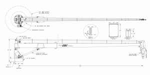
A telescopic offshore marine crane allows you to have a longer reach on a vessel. Being able to retract the telescopic boom with EBI’s outer telescopic gearboxes, allows you to store it easier on the deck of your vessel yielding more space on the deck. EBI uses their telescopic boom marine cranes on five of their liftboats. Make the reach of your lift without compromising the space of your offshore supply vessel with EBI’s telescopic boom marine crane.
More affordable and easier to maintain, EBI’s fixed boom pedestal crane is more durable and has less moving parts. EBI’s fixed boom pedestal crane is the perfect solution for standard, ordinary lifting & handling needs. A fixed boom marine crane works faster and is mostly used to transport groceries and smaller, more ordinary lifting & handling purposes. All EBI liftboats are equipped with a fixed boom pedestal crane.

















